
Çelik Yapı Olukları bir binanın çatı drenaj sisteminin önemli bir bileşenidir. Başlıca işlevleri çatıdan yağmur suyunu toplamak, dikey borulara yönlendirmek ve daha sonra dış drenaj sistemine boşaltarak doğrudan duvarları aşındırmasını veya temelleri ıslatmasını önlemektir. Liweiyuan'ın ürün tasarımı ve kurulumu, yüksek mukavemet ve hafiflik ile karakterize edilir ve pürüzsüz drenaj ve olağanüstü dayanıklılık sağlar.
Çelik Yapı Olukları bir binanın çatı drenaj sisteminin önemli bir bileşenidir. Başlıca işlevleri çatıdan yağmur suyunu toplamak, dikey borulara yönlendirmek ve daha sonra dış drenaj sistemine boşaltarak doğrudan duvarları aşındırmasını veya temelleri ıslatmasını önlemektir. Liweiyuan'ın ürün tasarımı ve kurulumu, yüksek mukavemet ve hafiflik ile karakterize edilir ve pürüzsüz drenaj ve olağanüstü dayanıklılık sağlar.
Liweiyuan'ın Çelik Yapı Oluğu, korozyona ve darbeye dayanıklı malzemelerden yapılmıştır.
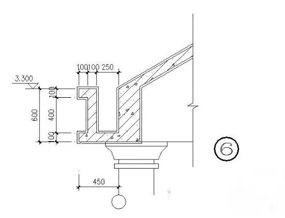
Çelik Yapı Oluğunun yapısal formunun çatı eğimi ve saçak tasarımına uyarlanması gerekmektedir. Yaygın tipler U şekilli ve V şekillidir. Kurulum işlemi aşağıdaki gibidir:
Paslanmaz çelikten üretilen bu ürün, korozyona karşı dayanıklılık sunar ve özellikle kıyı veya nemli ortamlar için uygundur. 1,0-2,0 mm kalınlıklarda mevcut olup, daha yüksek bir fiyat sunar ancak daha uzun bir kullanım ömrü sunar.
Renkli kaplamalı çelik ürünlerimiz, hem korozyon direnci hem de dekoratif etkiler için polyester veya florokarbon gibi hava koşullarına dayanıklı bir kaplamayla kaplanmış galvanizli çelik esaslıdır. 1,2-2,0 mm kalınlıklarda mevcuttur ve yüksek düzeyde estetik çekicilik gerektiren binalar için uygundur.
Çelik Yapı Oluğunun yapısal formunun çatı eğimi ve saçak tasarımına uyarlanması gerekmektedir. Yaygın tipler U şekilli ve V şekillidir. Kurulum işlemi aşağıdaki gibidir:
Çelik Yapı Oluklarımız, bunları çelik yapının saçak kirişlerine veya aşıklarına sabitlemek için açılı çelik oluk braketleri kullanır. Oluk boyunca eşit gerilim dağılımını sağlamak için braket aralığı 600-1000 mm'dir.
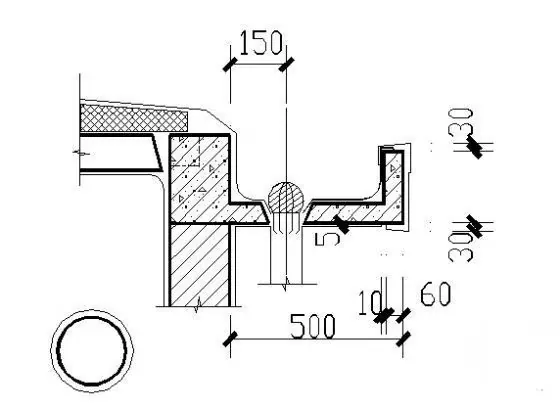
Bitmiş oluklar önceden boyutlandırılır ve konektörler veya kaynak kullanılarak yerinde bağlanır. Oluk ile çatı döşemesi arasındaki bağlantı noktasında sızdırmazlık maddesi gereklidir.
Çatı kaplamasının üzerine bir flaşör takabiliriz. Oluğun alt ucu çatı döşemesinin altına yerleştirilmeli ve sızdırmazlık maddesi ile kapatılmalıdır. Oluğun alt kısmında öncelikle yağmur suyu yükselticilerine bağlantı için drenaj delikleri bulunmalıdır.
Çelik Yapı Olukları imalat sürecimiz çizim ölçülerine göre kesim, büküm, boyama, bitmiş ürün kontrolü, paketleme ve nakliyeyi içermektedir. Liweiyuan'ın çelik yapı olukları, korozyon direnci, düzgün drenaj ve dayanıklılık sağlayarak verimli drenaj sağlayacak şekilde tasarlanmış ve monte edilmiştir.